امروز 27 آبان 1404

من یک معمار هستم. فارغ التحصیل کارشناسی ارشد معماری منظر از دانشگاه تهران، متخصص در زمینه طراحی، مدلسازی و رندرینگ.

در زمینه طراحی و ترسیم دو بعدی با نرم افزار اتوکد به مدت 10 سال تجربه دارم و مدتی هم با یک شرکت صنعتی برای ترسیم نقشه های فاز یک و دو همکاری داشته ام. به مدت 5 سال در زمینه مدلسازی و رندرینگ به صورت حرفه ای فعالیت دارم.

.............................................................................

در حال حاضر در چه زمینه هایی فعالیت دارم؟

  • معماری ساختمان و طراحی داخلی و لنداسکیپ
  • طراحی فضای مسکونی و ویلا
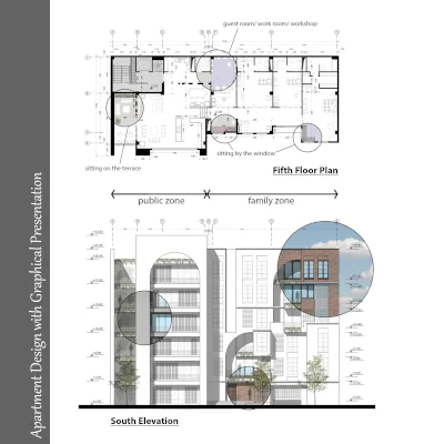
  • طراحی و ترسیم نقشه های فاز یک معماری در نرم افزار اتوکد (نقشه های دو بعدی)
  • مدلسازی و رندرینگ در نرم افزارهای تری دی مکس، ویری و ونتیج
  • مدلسازی و رندرینگ محصول در نرم افزارهای تری دی مکس، ویری
  • پست پروداکشن و ارائه های گرافیکی در نرم افزار فتوشاپ
  • طراحی بنر در نرم افزار فتوشاپ

.............................................................................

به چه کارهایی علاقه دارم؟

  • خواندن رمان
  • تنیس
  • و پست پروداکشن با فتوشاپ واقعا برای من لذت بخش است!

فعالیت به عنوان مجری

در حال بارگذاری ...

در حال بارگذاری ...