امروز 7 خرداد 1405

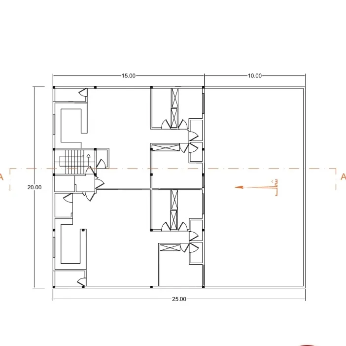
طراحی پلان معماری

طراحی پلان معماری

پلان فوق به صورت کامل توسط خودم طراحی و ترسیم شده و کاملا مطابق اصول معماری می باشد.

3 آبان 1400

مهارت‌های استفاده شده

Building Architecture

3 آبان 1400

مینا زارعی مینا زارعی

مینا زارعی

سایر نمونه‌کارهای