جستجوی پروژه
برای پروژههای ثبت شده پیشنهاد کار ارسال کنید.
جستجوی فریلنسر / مجری
مجریان متخصص را برای پروژه خود انتخاب کنید.
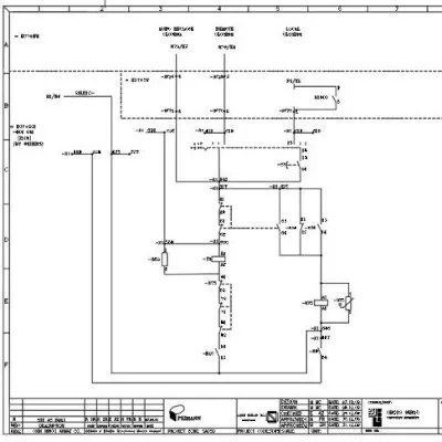
طراحی سه بعدی
Kia Project
طراحی سه بعدی با اتوکد
24 اسفند 1401
مهارتهای استفاده شده
اتوکد
سایر نمونهکارهای Kia Project
آیا میخواید از نوتیفیکیشن ها با خبر شوید؟