امروز 7 خرداد 1405

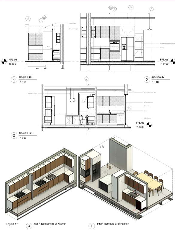
طراحی فاز دو و دیتیل های اجرایی

عاطفه نادمی

طراحی فاز دو و دیتیل های اجرایی

عاطفه نادمی

طراحی فاز دو و دیتیل های اجرایی

طراحی فاز دو و طراحی دیتیل های اجرایی با رویت

20 تیر 1404

مهارت‌های استفاده شده

3D Modelling 3D Rendering Revit

20 تیر 1404

عاطفه نادمی عاطفه نادمی

عاطفه نادمی

سایر نمونه‌کارهای