امروز 6 دی 1404

طراحی تاسیسات مکانیکی

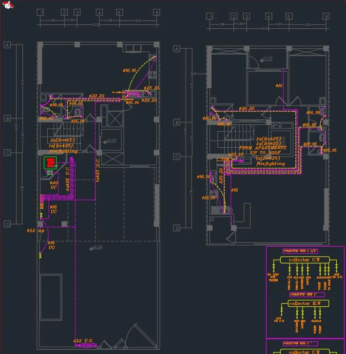
طراحی تاسیسات مکانیکی

این پروژه شامل طراحی و محاسبات سیستم گرمایش ، سرمایش و تهویه مطبوع - سیستم لوله کشی آب و فاضلاب - سیستم اطفاء حریق - سیستم گاز رسانی و همچنین نقشه های جزییات و رایزر ها و علائم و نشانه ها می باشد.

24 مرداد 1404

مهارت‌های استفاده شده

اتوکد طراحی مهندسی مهندسی تاسیسات

24 مرداد 1404

محمد حبیب آگهی محمد حبیب آگهی

محمد حبیب آگهی

سایر نمونه‌کارهای