امروز 17 آذر 1404
پروژه مسکونی جماران
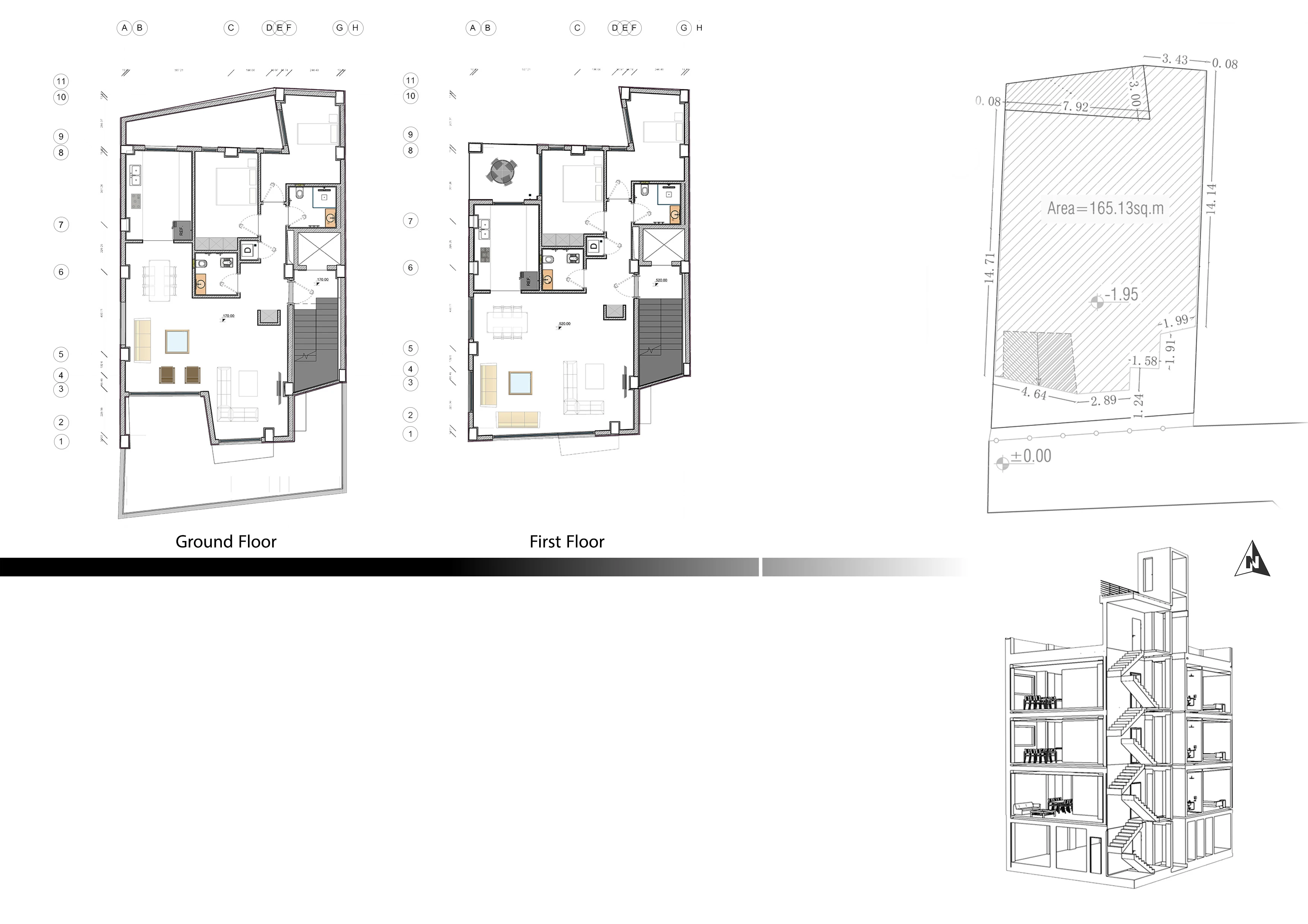
مدل کردن سازه و فاز دو در رویت-پلان تیپ در رویت-رندر در اینسکیپ
1 آبان 1404
مهارتهای استفاده شده
1 آبان 1404
پروژه مسکونی جماران
مدل کردن سازه و فاز دو در رویت-پلان تیپ در رویت-رندر در اینسکیپ
1 آبان 1404
مهارتهای استفاده شده
1 آبان 1404