امروز 11 بهمن 1404

فاز 2 ساختمان همراه با جزییات کامل

سیدمصطفی تدریسی

فاز 2 ساختمان همراه با جزییات کامل

سیدمصطفی تدریسی

فاز 2 ساختمان همراه با جزییات کامل

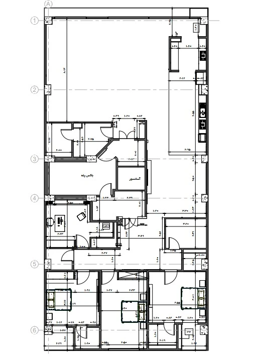
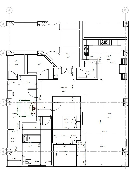
این پروژه نمونه‌ای از مدل‌سازی و تهیه نقشه‌های معماری با نرم‌افزار Revit است.
در این نمونه‌کار، پلان معماری به‌همراه مدل سه‌بعدی فضاهای داخلی ارائه شده است.

تمرکز این پروژه بر:

خروجی تمیز و قابل اجرا

رعایت ابعاد و تناسبات معماری

شیت‌بندی خوانا و حرفه‌ای

این نوع پروژه قابلیت توسعه تا نقشه‌های فاز ۲، دیتیل اجرایی و متره را دارد و مناسب همکاری فریلنسری می‌باشد.

27 آذر 1404

مهارت‌های استفاده شده

Revit

27 آذر 1404

سیدمصطفی تدریسی سیدمصطفی تدریسی

سیدمصطفی تدریسی

سایر نمونه‌کارهای